본문

건축
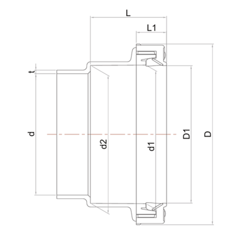
비압력용 이음관 [ 섹스티아 ]접합부
제품규격
| 호칭지름 | d (최소치) |
d1 | d2 | d1,d2 (허용차) |
D (참고) |
D1 (최소치) |
L (참고) |
L1 (참고) |
t (참고) |
|---|---|---|---|---|---|---|---|---|---|
| 50 | 51 | 61.1 | 60.6 | ±0.35 | 89 | 60 | 35.5 | 19.5 | 2.5 |
| 75 | 78 | 90.2 | 89.7 | ±0.50 | 121.6 | 89.4 | 50.5 | 22 | 2.8 |
| 100 | 100 | 115.3 | 114.8 | ±0.50 | 151.4 | 114.4 | 63 | 25 | 3 |
* 제품의 성능과 디자인은 품질 및 안전성 향상, 소음 감소 등을 위하여 별도의 사전 예고없이 일부 변경될 수 있습니다.