본문

토목
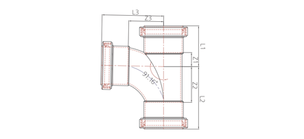
내충격 이음관와이티 (LTA)
제품규격
| 호칭지름 | Z1 | Z2 | Z3 | L1 | L2 | L3 |
|---|---|---|---|---|---|---|
| 100X100 | 42 | 114 | 125 | 116 | 188 | 207 |
| 150X100 | 40 | 109 | 150 | 147 | 216 | 232 |
| 150X150 | 63 | 161 | 156 | 183 | 281 | 276 |
| 200X150 | 71 | 115 | 178 | 231 | 275 | 298 |
* 제품의 성능과 디자인은 품질 및 안전성 향상, 소음 감소 등을 위하여 별도의 사전 예고없이 일부 변경될 수 있습니다.