본문

토목
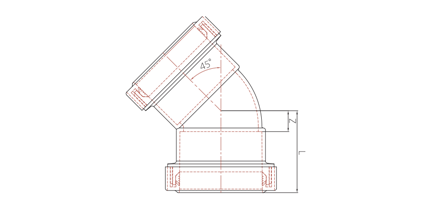
내충격 이음관곡관 (45SA)
제품규격
| 호칭지름 | Z | L |
|---|---|---|
| 100 | 29 | 114 |
| 150 | 42 | 161 |
| 200 | 55 | 215 |
* 제품의 성능과 디자인은 품질 및 안전성 향상, 소음 감소 등을 위하여 별도의 사전 예고없이 일부 변경될 수 있습니다.

토목
내충격 이음관
| 호칭지름 | Z | L |
|---|---|---|
| 100 | 29 | 114 |
| 150 | 42 | 161 |
| 200 | 55 | 215 |
* 제품의 성능과 디자인은 품질 및 안전성 향상, 소음 감소 등을 위하여 별도의 사전 예고없이 일부 변경될 수 있습니다.