본문

토목
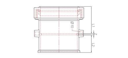
내충격 이음관편수식소켓
제품규격
| 호칭지름 | L1 | L2 | Z(최소) |
|---|---|---|---|
| 100 | 85 | 55 | 4 |
| 150 | 120 | 80 | 5 |
| 200 | 160 | 115 | 5 |
* 제품의 성능과 디자인은 품질 및 안전성 향상, 소음 감소 등을 위하여 별도의 사전 예고없이 일부 변경될 수 있습니다.

토목
내충격 이음관
| 호칭지름 | L1 | L2 | Z(최소) |
|---|---|---|---|
| 100 | 85 | 55 | 4 |
| 150 | 120 | 80 | 5 |
| 200 | 160 | 115 | 5 |
* 제품의 성능과 디자인은 품질 및 안전성 향상, 소음 감소 등을 위하여 별도의 사전 예고없이 일부 변경될 수 있습니다.